19 400 тыс. руб.
Новолисиха, Байкальский тракт, Еловый, Галинина
Добавлено: 02.02.2026 в 15:04 · Обновлено: 04.02.2026
Клееный брус, участок: 20.1 сот.



































Адрес: Иркутская область, р-н Иркутский, п. Еловый, ул. Галинина.
Новый дом вашей мечты на Байкальском тракте, всего в 10-ти минутах езды от города. Идеальное сочетание загородной тишины и доступности города - 17 км Байкальского тракта.
Клееный 22-й профилированный брус - высокотехнологичный материал, из которого построен наш дом.
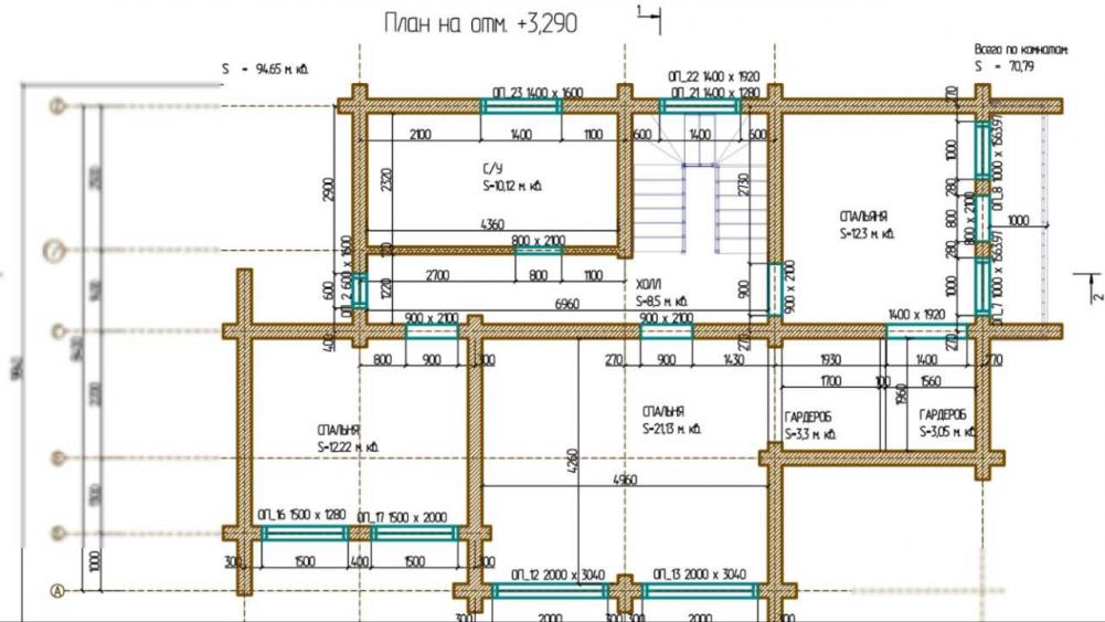
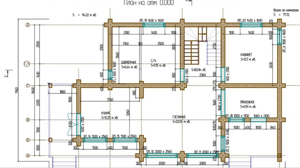
На первом этаже расположены кухня-гостиная, кабинет с панорамными окнами - пространство для творчества, где возможно сделать спальню.
На каждом этаже предусмотрен санузел.
На втором этаже целых три спальни, две из которых со своими гардеробными, одна с выходом на террасу с красивым видом на лес.
Имеется цокольный этаж, где планировали сделать кинозал, бильярдную и оборудовать иные помещения по своему усмотрению. установлена бойлерная.
Гараж на 4 машины со смотровой ямой, с электрокотлом на 25 кВт. (всего два котла, один из которых в доме). Откатные ворота.
Скважина 120 метров, септик 9 кубов, официальный свет. Фундамент заливной бетон. Строили для себя, качество проверенное стандартами. Дом без внутренней отделки, но основные работы выполнены, проведены коммуникации, свет, стены натуральные из бруса, сделана разводка.
Юридическая ситуация: один взрослый собственник (физ.лицо), без обременений и долгов.
Не упустите возможность стать владельцем этого замечательного дома из настоящего клееного бруса, где сочетаются комфорт, качество и выгода. В этом доме вы сможете создать собственный дизайн, сделать ремонт именно под свои пожелания.
Приглашаем вас лично ознакомиться со всеми плюсами нашего дома, организовать показ можем в удобное время по предварительной договоренности.
|
| Дата | Цена | Изменение | % |
|---|---|---|---|
| 02.02.2026 | 19 400 000 руб. |
© 2008—2019 RealtyVision - Недвижимость Иркутска
На главную - Перейти в версию для ПК